Te koop Penthouse Duplex Costa Del Sol Costabella € 475.000,- Ref.nr: RSOR5185375
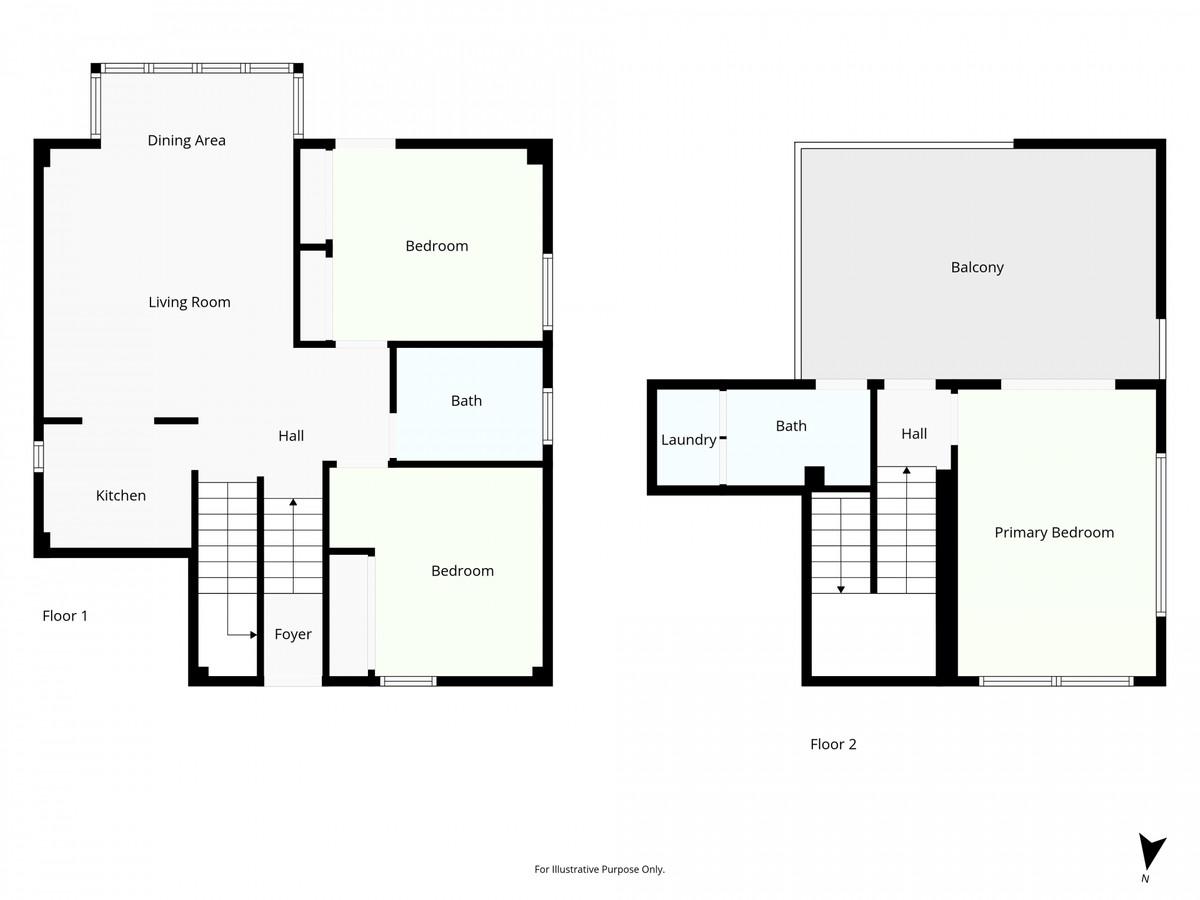
80m²
3
2
| Slaapkamers | 3 |
| Badkamers | 2 |
| Woonoppervlak | 0m² |
| Leefruimte | 80m² |
| Zwembad | ja |
| Tuin | ja |
| Parkeren | nee |
| Airco | %lng_% |
| Opslagruimte | %lng_% |
| Lift | %lng_% |
| Bouwjaar | 0 |
| Verdieping | |
| Setting: Beachside, Close To Shops, Close To Sea, Close To Schools | |
| Orientation: South | |
| Condition: Excellent | |
| Pool: Communal | |
| Climate Control: Air Conditioning, Central Heating | |
| Views: Sea, Garden | |
| Features: Near Transport, Private Terrace, Solarium, Storage Room, Barbeque | |
| Furniture: Fully Furnished | |
| Garden: Communal | |
| Security: Gated Complex | |
| Parking: Covered |