Te koop Finca - Cortijo Costa Del Sol Cártama € 300.000,- Ref.nr: RSOR5041972
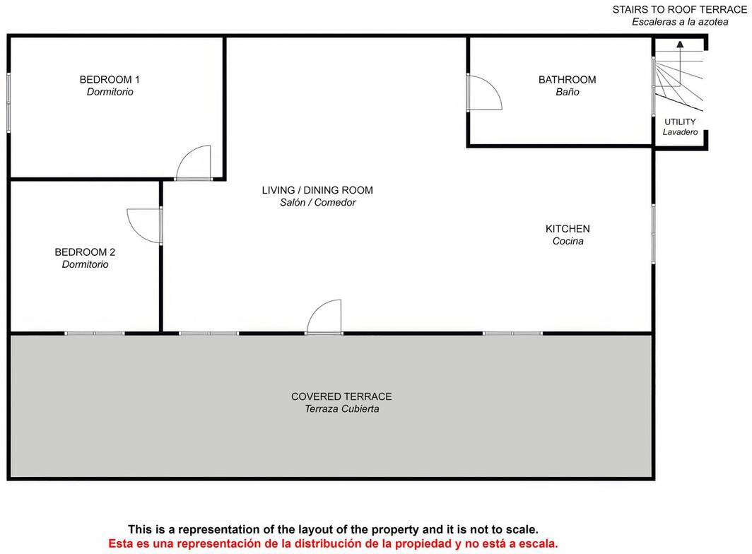
70m²
2
1
| Slaapkamers | 2 |
| Badkamers | 1 |
| Woonoppervlak | 70m² |
| Leefruimte | m² |
| Zwembad | ja |
| Tuin | ja |
| Parkeren | nee |
| Airco | %lng_% |
| Opslagruimte | %lng_% |
| Lift | %lng_% |
| Bouwjaar | 2010 |
| Verdieping | |
| Setting: Country | |
| Orientation: South | |
| Condition: Excellent | |
| Pool: Private | |
| Views: Country | |
| Features: Covered Terrace, Private Terrace, Solarium | |
| Furniture: Fully Furnished | |
| Kitchen: Fully Fitted | |
| Garden: Private | |
| Security: Gated Complex | |
| Parking: Open, More Than One | |
| Utilities: Electricity, Drinkable Water | |
| Category: Resale |